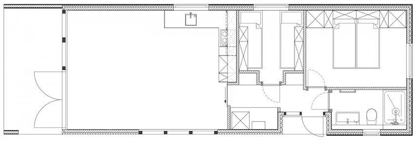
Conçu par De Bergjes, construit par Willerby ! Le Willerby Lumic est notre tout dernier modèle dans notre vaste gamme de mobil-homes, dont nous pouvons être très fiers !
Nous ne sommes pas seulement fiers du modèle et de son prix extrêmement attractif, le nom a aussi une signification particulière pour nous ! Le nom ‘Lumic’ est une combinaison de Luc (chauffeur de camion) et de Michel (technicien de service). Les deux hommes travaillent depuis 12,5 ans chez De Bergjes Chalets et Caravans. À l’occasion du 12,5e anniversaire de Luc et Michel, nous avons donné leur nom à ce modèle.
Si vous optez pour le pack de meubles Willerby Lumic, vous recevrez des rideaux gris dans les chambres à coucher, des rideaux colorés dans le salon, une table à manger avec 4 chaises, un canapé-lit, un tabouret, un meuble TV et une table basse.














